
Výr je moderní roubenka, kde tradiční dřevěná konstrukce s rybinovými spoji v rozích byla nahrazena modernějšími srubovými spoji s přesahem, které dodávají domu výrazný architektonický charakter a zároveň zachovávají autentickou roubenou estetiku. Předsunutý vikýř v podkroví zvětšuje obytný prostor a přivádí více světla do interiéru, zatímco v přízemí zaujmou velké prosklené stěny, jež propojují obytný prostor s terasou a zahradou. Dům nabízí prostornou kuchyň a pět komfortních pokojů, což poskytuje dostatek místa pro celou rodinu. Výr je ideální volbou pro ty, kteří hledají jedinečný vzhled domu spojený s komfortem a praktičností moderního rodinného bydlení.
- Zastavěná plocha: 163,5 m2
- Užitná plocha: 180,6 m2
- Dispozice: 6+kk
Cena od (bez DPH):
Uvedená cena je za uzavřenou hrubou stavbu.



Půdorysy
- Zastavěná plocha: 163,5 m2
- Užitná plocha: 180,6 m2
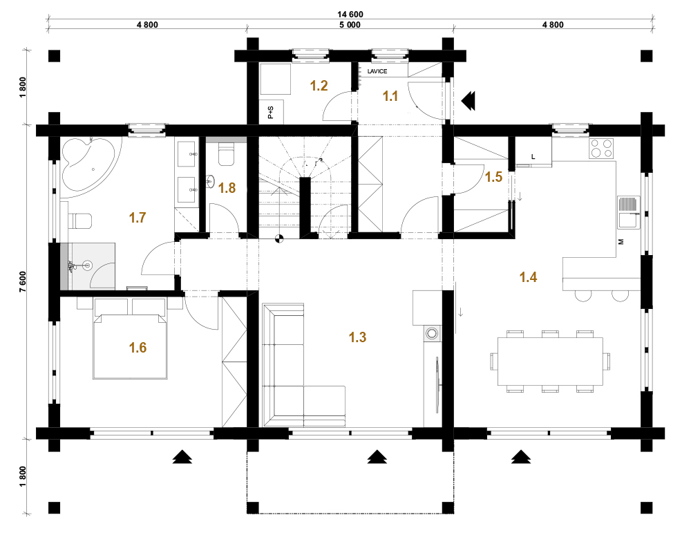
Přízemí
- 1.1 Zádveří: 8,4 m2
- 1.2 Technická místnost: 3,4 m2
- 1.3 Obývací pokoj: 23 m2
- 1.4 Kuchyň: 28,2 m2
- 1.5 Komora: 3,1 m2
- 1.6 Pokoj: 14,3 m2
- 1.7 Koupelna: 11,7 m2
- 1.8 WC: 2,2 m2

1. patro
- 2.1 Chodba: 19 m2
- 2.2 WC: 2,2 m2
- 2.3 Koupelna: 11,7 m2
- 2.4 Pokoj 1: 14,4 m2
- 2.5 Pokoj 2: 18,3 m2
- 2.6 Pokoj 3: 15 m2
- 2.7 Pokoj 4: 15 m2
