
Roubenka Farmář je ideální volbou pro rodinu či skupinu přátel, kteří hledají prostor a pohodlí. Tento dům nabízí velkorysý obývací prostor v přízemí, kde se může setkávat celá rodina, a útulné podkroví se třemi samostatnými pokoji. Na chodbě v podkroví je umístěna pohovka – perfektní místo pro odpočinek, čtení nebo večerní posezení. Spojuje tradiční vzhled roubenky s dostatkem prostoru pro pohodlný život i při větším počtu osob.
- Zastavěná plocha: 86,1 m2
- Užitná plocha: 140 m2
- Dispozice: 5+kk
Cena od (bez DPH):
Uvedená cena je za uzavřenou hrubou stavbu.



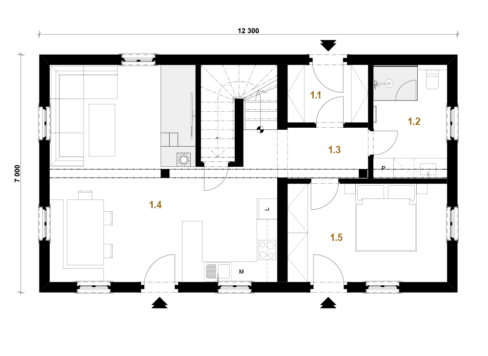
Půdorysy
- Zastavěná plocha: 86,1 m2
- Užitná plocha: 140 m2
Přízemí
- 1.1 Zádveří: 4 m2
- 1.2 Koupelna, WC: 7,3 m2
- 1.3. Chodba: 5,1 m2
- 1.4 Obývací pokoj + KK: 35,5 m2
- 1.5 Pokoj: 13,6 m2

1. patro
- 2.1 Chodba, sezení: 19,1 m2
- 2.2 WC: 1,9 m2
- 2.3 Pokoj: 11,3 m2
- 2.4 Pokoj: 11,3 m2
- 2.5 Pokoj: 26,2 m2
